Weld 100PFC 45 ° Kihi Post HDG paʻa pā kia
Pā paʻaʻO nā pou he kila hana kaumaha i loaʻa i kahi hoʻopau piha Hot Dip Galvanized no ka pale ʻana i ka ʻino.Hoʻopili mua ʻia nā pou āpau e hoʻokomo i nā pale paʻa kūikawā.
Hāʻawi ka ʻōnaehana Retaining Wall Post i kahi "hopena a pau i ka hoʻokahi" e hoʻokipa ai i ka pili lāʻau a i ʻole ka pā metala e maʻalahi ai ke kau ʻana a mālama i ka manawa a me ke kālā.
Loaʻa ka laulā maʻalahi o nā lōʻihi i ʻelua nui 100mm Series e kūpono i ka 75mm Sleepers & 150mm Series e kūpono i ka 100mm Sleepers.
| Inoa hana | Paʻa Paʻa Paʻa | Kaila | ʻO ka ʻāpana C, ʻāpana H, nā kihi 45 ° & 90 ° Degere |
| Nā lōʻihi | 900mm a 4800mm | Mahele H & Mahele C |
HIʻona
Maʻalahi a maʻalahi e hoʻokomo.
Loaʻa i nā pou moʻo 100mm &150mm.
Loaʻa ka laulā nui o nā lōʻihi o nā waihona.
Hoʻopaʻa ʻia me ka wela wela piha i ka AS/NZS 4680.
ʻO nā mea a pau i hana mua ʻia no ka hoʻopili ʻana i ka pā.
Loaʻa nā pale pā no ka lāʻau a i ʻole ka pou kila. Hoʻohui piha me nā mea hoʻoponopono.
Noi o Hot kuai 100mm moʻo galvanized kila kaola h channel paʻa pā kia.
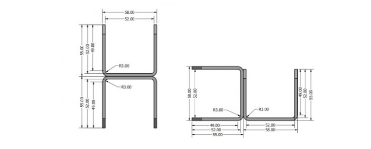
100mm Series e kūpono i ka 75mm Moe
H- Pauku Hui, C-Pauku Hope, 45°& 90° Degere Kihi
150mm Series e kūpono i ka 100mm Moe
Mahele H & Mahele C
| Māhele | Palapala noi |
| C PAUKU | Hoʻohana ʻia ka ʻāpana C e hoʻopau maʻemaʻe i nā ʻaoʻao āpau.ʻO ka hana kaumaha, Hot- Dipped, Anti-Corrosion Galvanized Coating, i hoʻolālā ʻia e hāʻawi i ka ʻoi aku ka maikaʻi.Hoʻopili nā ʻāpana RAINBOW i nā koi a pau e pili ana i ka AS/NZS 3679-2010 a me AS/NZS 4680-2006 Australian no ka ikaika kila, haku mele a me ka pale zinc galvanized, ka lōʻihi a me ka lōʻihi. |
| PAUKU 90 DEGREE | Hoʻohana ʻia ka ʻāpana 90° e hana i nā paia kihi ʻākau.ʻO ka hana kaumaha, Hot- Dipped, Anti-Corrosion Galvanized Coating, i hoʻolālā ʻia e hāʻawi i ka ʻoi aku ka maikaʻi.Hoʻopili nā ʻāpana RAINBOW i nā koi a pau e pili ana i ka AS/NZS 3679-2010 a me AS/NZS 4680-2006 Australian no ka ikaika kila, haku mele a me ka pale zinc galvanized, ka lōʻihi a me ka lōʻihi. |
| PAUKU 45 DEGREE | Hoʻohana ʻia ka ʻāpana 45° e hana i nā kihi palupalu.ʻO ka hana kaumaha, Hot- Dipped, Anti-Corrosion Galvanized Coating, i hoʻolālā ʻia e hāʻawi i ka ʻoi aku ka maikaʻi.Hoʻopili nā ʻāpana RAINBOW i nā koi a pau e pili ana i ka AS/NZS 3679-2010 a me AS/NZS 4680-2006 Australian no ka ikaika kila, haku mele a me ka pale zinc galvanized, ka lōʻihi a me ka lōʻihi. |
| X PAUKU KEA | ʻO ka hana kaumaha, Hot- Dipped, Anti-Corrosion Galvanized Coating, i hoʻolālā ʻia e hāʻawi i ka ʻoi aku ka maikaʻi.Hoʻopili nā ʻāpana RAINBOW i nā koi a pau e pili ana i ka AS/NZS 3679-2010 a me AS/NZS 4680-2006 Australian no ka ikaika kila, haku mele a me ka pale zinc galvanized, ka lōʻihi a me ka lōʻihi. |
E kākau i kāu leka ma aneʻi a hoʻouna mai iā mākou








